Ombygging: klinisk kompetansesenter
I hovedbygget på Campus Bodø kommer en ny fremtidsrettet undervisningsarena for Fakultet for sykepleie og helsevitenskap, med funksjoner man kan forvente å finne på et ekte sykehus.
Offisiell åpning 21. november
Byggeprosjektet nærmer seg slutten, og vi nærmer oss åpningen av et nytt klinisk kompetansesenter i Bodø.
For mer informasjon:
Ombyggingsprosjektet for klinisk kompetansesenter i hovedbygget har oppstart medio august 2024. Ombyggingsprosjektet vil foregå parallelt med studiestart og undervisning 2024/2025.

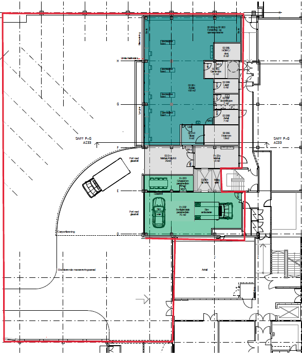
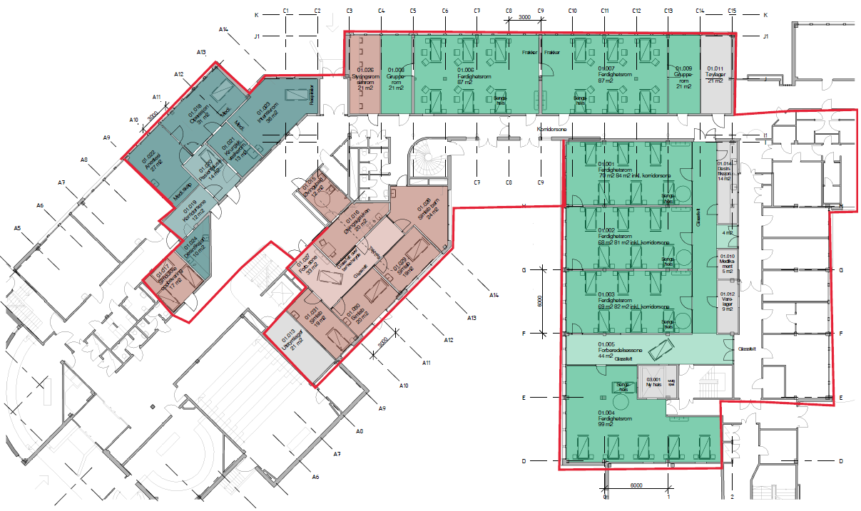
Arealer berørt av ombyggingen:
Arealene som inngår i ombygningen, vil ikke være mulig å bruke til undervisning eller annen aktivitet i denne perioden. Kartene under viser hvilke arealer som vil bli berørt.


Faktaboks
- Ombygginggingen er en del av prosjektet "Blått bygg", som omfatter nybygg for fakultet for biovitenskap og akvakultur (Noatun), og ombygging av eksisterende lokaler for fakultet for sykepleie og helsevitenskap
- Ombyggingen dekker ca. 1700 kvadratmeter i eksisterende campusbygg
- Totalentreprenør: HENT AS
- Oppstart ombygging i hovedbygget: ca 15. august 2024
- Ferdigstillelse nytt klinisk kompetansesenter: Høst 2025
Kontaktperson
Vebjørn Hunstad
Avdelingsingeniør
Digitalisering og infrastruktur
Kontor: Bodø, Administrasjonsbygget, 124
E-post: vebjorn.hunstad@nord.no
Telefon: +4775517377
Mikkel Andreas Gravbrøt Mona
Kontorsjef
Digitalisering og infrastruktur
Kontor: Steinkjer, Bygg A, 219
E-post: mikkel.a.mona@nord.no
Telefon: +4774112088
Map by MazeMap
